Villa a schiera d'angolo in vendita

Cologno Al Serio, Piazza Vittorio Emanuele II
€ 395.000
Prezzo aggiornato
4 locali 4 locali
180 Mq 180 Mq
2 bagni 2 bagni

Villa a schiera d'angolo in vendita

Cologno Al Serio, Piazza Vittorio Emanuele II

Descrizione annuncio

COLOGNO AL SERIO:

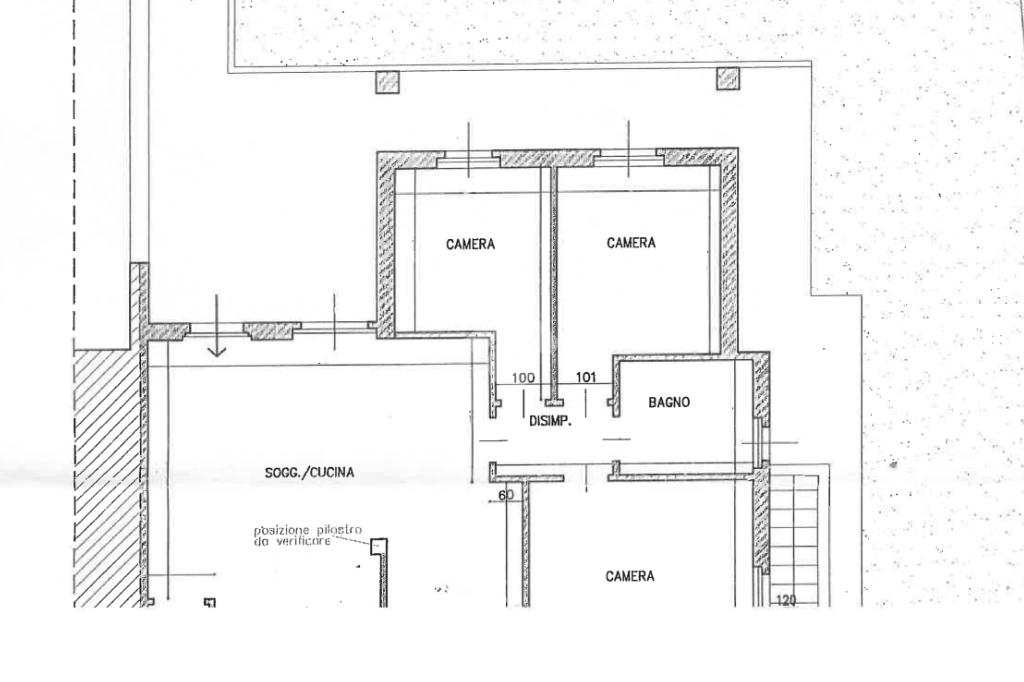
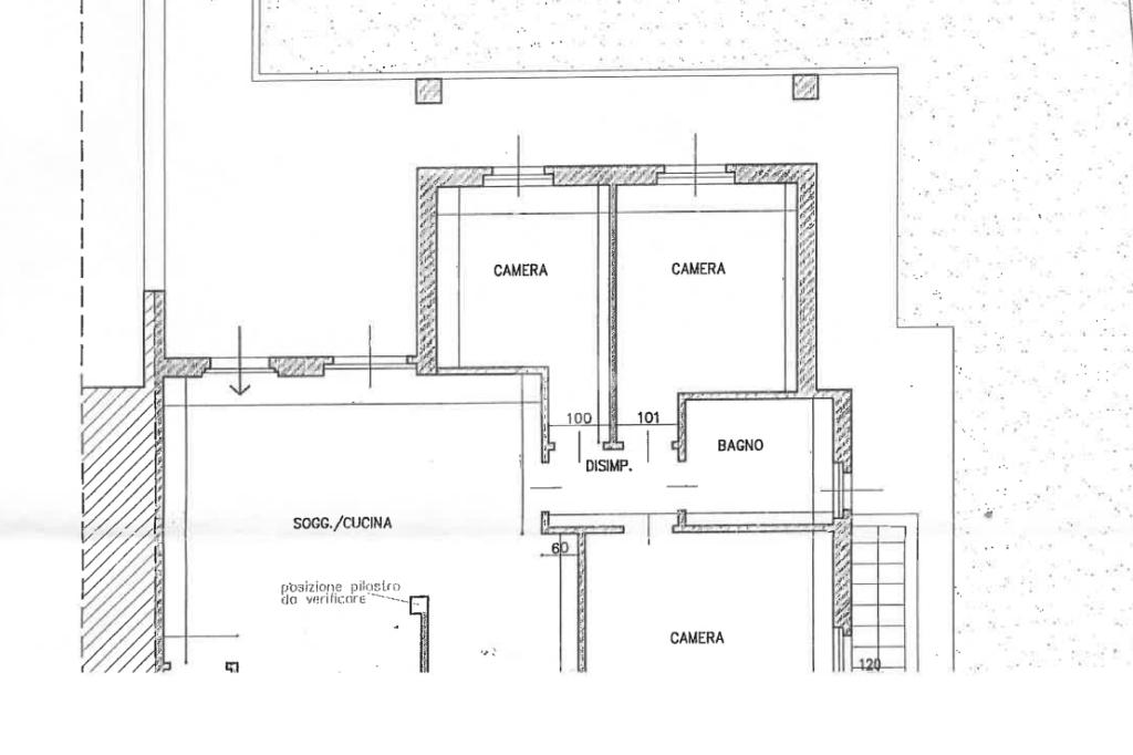
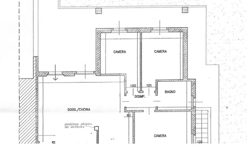
Nel comune di Cologno al Serio, proponiamo in vendita una villa a schiera d'angolo di categoria signorile, in fase di costruzione.

L'immobile si sviluppa su un unico piano terra, con ingresso nel soggiorno con cucina a vista.

Nella zona notte troviamo tre camere da letto, tra cui una matrimoniale e due singole, e infine un bagno finestrato con doccia.

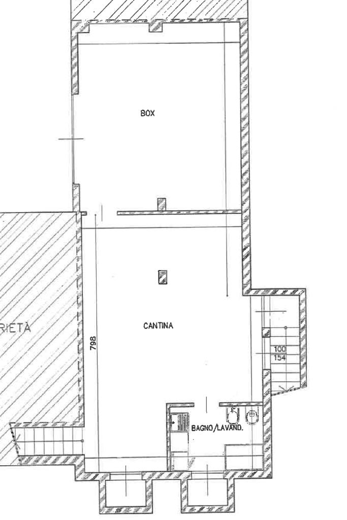
Un'ampia taverna di 45 mq completa la proprietà, ideale per momenti di relax o convivialità. Troviamo anche un secondo bagno adibito a lavanderia.

Il giardino privato di 250 mq rappresenta un'oasi di tranquillità, perfetta per chi ama gli spazi verdi. La villa è dotata di un box doppio in larghezza.

Tra le dotazioni moderne, troviamo la predisposizione per l'allarme, aria condizionata e telecamere, garantendo comfort e sicurezza.

Completa il tutto i panelli fotovoltaici KW 4,5, riscaldamento a pavimento con pompe di calore ariston mos. nimvus pocket 80 M NET R32.

Classe A+.

Un'opportunità unica per chi cerca una soluzione abitativa elegante e funzionale.

l gruppo Tecnocasa offre consulenza riguardo tutte le fasi della compravendita e valutazioni gratuite del proprio immobile.

Inoltre la collaborazione con il gruppo Kiron ci consente di fornirvi consulenza a titolo gratuito ed informativo per l'erogazione dei mutui bancari.

Mostra tutto

Nelle vicinanze

Trasporto pubblico Trasporto pubblico
Scuole elementari
Scuole elementari
210 m
Porta Rocca
Porta Rocca
270 m
Ricariche auto elettriche Ricariche auto elettriche
Cologno al Serio - BeCharge
200 m
A.W.S. Corporation Srl
1,4 Km
Negozi Negozi
Boutique Moretti
2,6 Km
Bar Bar
Caffè Colleoni
1,2 Km
Bar
2,0 Km
Da Adriano
2,9 Km
Da Batosta
3,0 Km
Tre Archi
3,0 Km
Ristoranti Ristoranti
Ristorante Pizzeria Corona
750 m
Ristoranti
2,0 Km
Pizzeria Me Gusta
2,1 Km
Agriturismo Sant'Antonio
2,4 Km
Tijuana
2,5 Km
Mostra tutto

Caratteristiche

Rif.:
61177534
Piano:
Terra
Box:
1
Posti auto:
1
Camere da letto:
3
Arredamento:
Assente
Mostra tutto
Prezzo Prezzo
€ 395.000
Rata mutuo Rata mutuo
€ 1.872 / mese
Spese annue Spese annue
€ 100
Proponi il tuo prezzoProponi il tuo prezzo
Immobile valutato con T·Valuta

Classe Energetica

A2
A2
A2
A2
A2
A2
A2
A2
A2
EP globale non rinnovabile:
74.22 kW h/m² anno
EP globale rinnovabile:
74.22 kW h/m² anno
EP invernale del fabbricato:
EP estiva del fabbricato:
Anno di costruzione:
2026
Riscaldamento:
Autonomo
Tipo impianto:
A pavimento
Tipo alimentazione:
Metano

Prezzo ridotto di €1 (4%%)

Ti interessa visionare l'immobile?

Fissa un appuntamento  Fissa un appuntamento

Richiedi informazioni

Clicca su Leggi per aprire l'informativa
* Questi campi sono obbligatori

Calcola il tuo mutuo

Semplice e senza impegno
Anticipo

( % )
Mutuo

( % )

pochi semplici passi

inserisci i tuoi dati
Questionario completato
Grazie per aver richiesto un appuntamento senza impegno con un nostro Consulente del Credito e Assicurativo.

Hai inserito correttamente tutti i dati necessari e a breve riceverai una e-mail con un link da convalidare per inviare i tuoi dati.
Affiliato
Tecnocologno Srl
P.zza Vittorio Emanuele II, 19 24055 Cologno Al Serio (BG)

Il nostro staff


  • Riccardo Villa
    Responsabile

  • Valentina Carminati
    Collaboratrice

  • Anna Giassi
    Responsabile
P.zza Vittorio Emanuele II, 19 24055 Cologno Al Serio (BG)
Zona: Cologno al Serio-Urgnano-Basella e Frazioni
Mostra su mappa
Orari: Lunedì 8:30 - 12:30 ; 14:30 - 20:00 Martedì 8:30 - 12:30 ; 14:30 - 20:00 Mercoledì 8:30 - 12:30 ; 14:30 - 20:00 Giovedì 8:30 - 12:30 ; 14:30 - 20:00 Venerdì 8:30 - 12:30 ; 14:30 - 20:00 Sabato 8:30 - 12:30 ; 14:30 - 18:00
Affiliato
Tecnocologno Srl
P.zza Vittorio Emanuele II, 19 24055 Cologno Al Serio (BG)

2026 Tecnocasa Franchising S.p.A. - P. IVA 08365160152 - Via Monte Bianco 60/A 20089 Rozzano (MI). Ogni agenzia ha un proprio titolare ed è autonoma. Privacy policy | Policy utilizzo | Cookie policy